The Belles Townhomes are San Francisco's first LEED Platinum-certified multi-family housing units. The seven unit multi-family building is designed and built by Kieran Timberlake and LivingHomes in a modern vernacular. It's an adaptive reuse project which has turned a hospital into an apartment building in the city's historic Presidio district (and National Park!)
Its own sustainable community, the Presidio Landmark was built with the love of nature, culture, community, and urban conveniences in mind. It's within walking distance to both the Lobos Valley Overlook and the artsy boutiques and Asian markets of the Richmond District. Laurel Village cafes and shops are nearly as close as the serpentine cliffs of Baker Beach. A short bike ride brings you to the Golden Gate Bridge and the Marin Headlands—or a 20-minute bus ride lands you in the Financial District.

Each home features an energy dashboard to monitor energy usage in hopes that residents will become more aware of their usage and lower their footprint. Rainwater is collected from the roof and stored in an underground aquifer to minimize stormwater runoff and drought- tolerant plants are used in the landscaping. Over 90% of the interior spaces receive natural daylighting. With solar panels on the roof, energy monitoring and efficient appliances inside, rainwater collection and a lot more, new tenants are sure to feel happy-go-lucky.
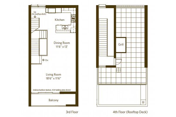
Each 3-bedroom unit is a 3-story design with low- or no-VOC carpets, paints or adhesives and uses a high concentration of recycled-content materials. Each home has its own roof top solar system to provide some of the energy needs. The first and second floor feature the garage, storage and the three bedrooms and bathrooms; the third floor contains the main living spaces.
This is truly city living that aligns with your values, your interests and your desire to live life to the fullest.
If you haven't seen our current Platinum LEED Certified project on Butterfly Beach in Montecito, check it out here.
If you haven't seen our current Platinum LEED Certified project on Butterfly Beach in Montecito, check it out here.







ShareThis























0 comments:
Post a Comment